Mobile menu
首页>产品中心>地铁隧道风机>SDS系列射流风机

SDS系列射流风机

产品规格

特点:铁路、高速公路、隧道专用轴流式(消防)通风。
规格:
风机直径:Φ400~1600mm,
出口风速:24~38m/s
轴向推力:300~1600N
产品概述
产品参数及说明

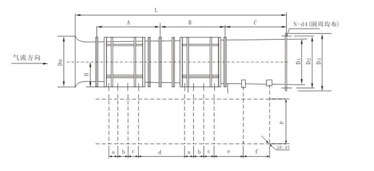
SDS系列射流式通风机外形尺寸图(mm)


SDS系列单向射流通风机性能参数表

 


SDS系列单向射流通风机性能参数表 



SDS(R)系列双向射流通风机性能参数表

 


SDS(R)系列双向射流通风机性能参数表
 



2SDS型隧道对旋轴流通风机
 


2SDS隧道对旋周六通风机性能参数表 



 


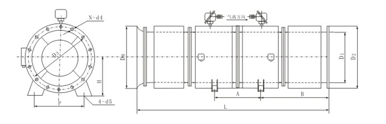
2SDS-50A~125隧道对旋轴流通风机外形图 



 


2SDS-50A~125隧道对旋轴流通风机外形尺寸表 



 


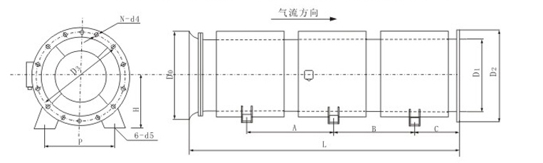
2SDS-140~160隧道对旋轴流通风机外形图 



 


2SDS-140~160隧道对旋轴流通风机外形尺寸表 



 


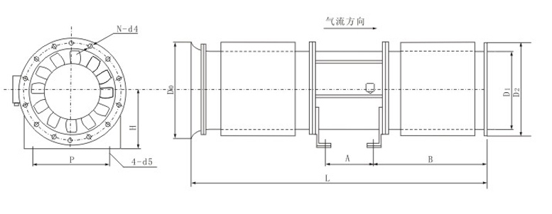
2SKL-80~125型动叶可调隧道对旋轴流通风机外形图 



 


2SKL-80~125型动叶可调隧道对旋轴流通风机外形尺寸表 



 


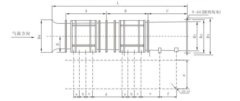
2SKL-140~180型动叶可调隧道对旋轴流通风机外形图 



 


2SKL-140~180型动叶可调隧道对旋轴流通风机外形尺寸表 



B2SDS型防爆隧道对旋轴流通风机
 


B2SDS型防爆隧道对旋轴流通风机性能表 



 


B2SDS-60~110型防爆隧道对旋轴流通风机外形图 



 


B2SDS-60~110型防爆隧道对旋轴流通风机外形尺寸表 



3SDS型隧道三级串联轴流通风机
 


3SDS型隧道三级串联轴流通风机性能表 



 


3SDS-71~180型隧道三级串联轴流通风机外形图 



 


3SDS-71~180型隧道三级串联轴流通风机外形尺寸表 



SDS型动叶可调隧道单级轴流通风机
 


SDS型动叶可调隧道单级轴流通风机性能表 



 


SDS-90~140型动叶可调隧道单级轴流通风机外形图 



 


SDS-90~140型动叶可调隧道单级轴流通风机外形尺寸表 



 


SDS-160~200型动叶可调隧道单级轴流通风机外形图(左)
SDS-160~200型动叶可调隧道单级轴流通风机外形尺寸表(右)
 



 


SLFT型隧道子午加速轴流通风机性能表 



 


SLFT-160~200型隧道子午加速轴流通风机外形图 



 


SLFT-160~200型隧道子午加速轴流通风机外形尺寸表 



 


SLFT-40~140隧道子午加速轴流通风机外形图
 



 


SLFT-40~140隧道子午加速轴流通风机外形尺寸表
 

其他产品